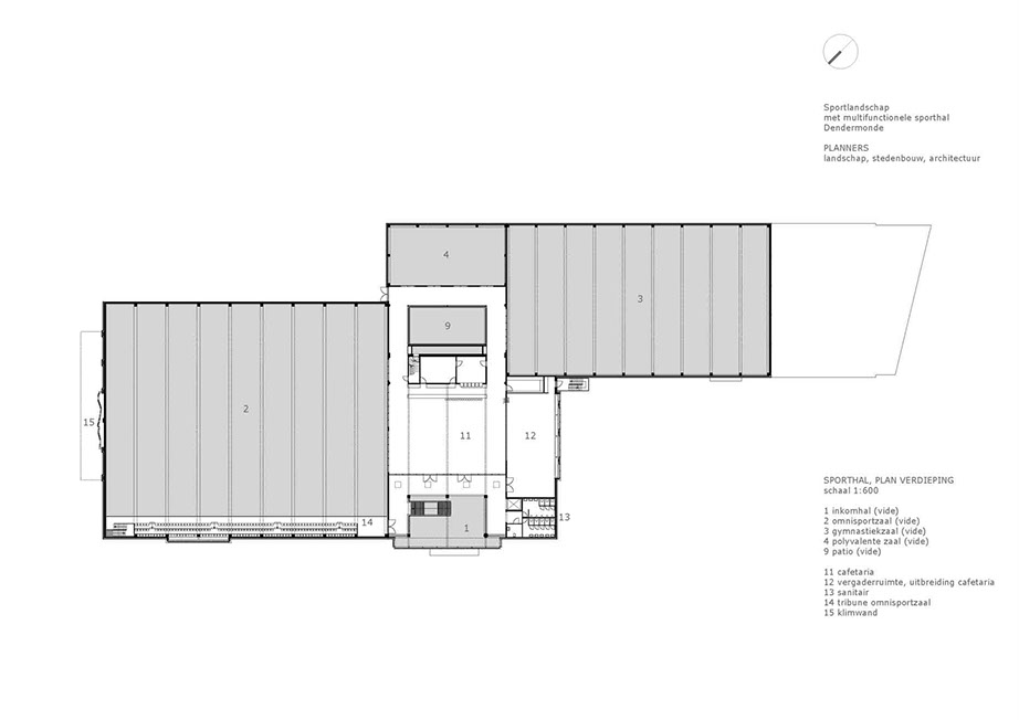
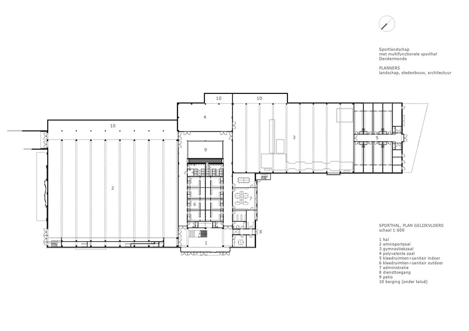
SPORTLANDSCHAP

Locatie: Dendermonde

Bouwjaar: 2007

Programma:

Masterplan sportcampus en nieuwbouw van sporthal met omnisporthal, olympische turnhal, polyvalente hal, cafetaria, vergaderruimten, administratie, conciƫrgewoning.

 

Opdrachtgever: Belfius NV /

Autonoom Gemeentebedrijf Dendermonde

Bruto oppervlakte: 7.100 m2

Bouwkost: 6.525.282 euro (excl. erelonen,buitenaanleg, btw)

Projectleiding: Jo Meers

Aannemer: Strabag NV