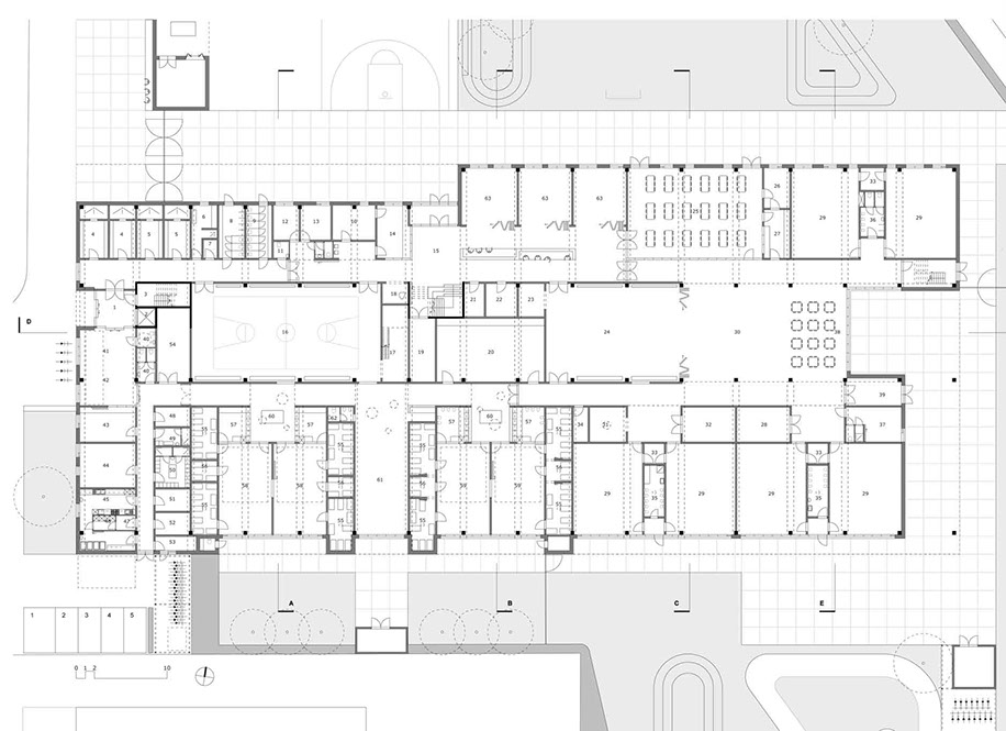
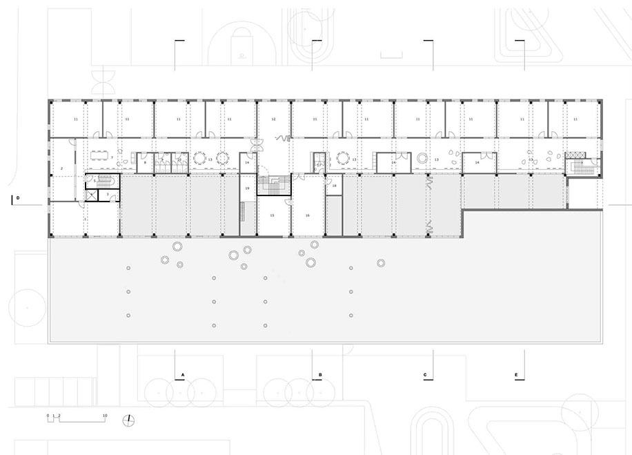
PASSIEFSCHOOL

Locatie: Berendrecht

Bouwjaar: Voorzien 2016

Programma:

Nieuwbouw basis- en kleuterschool & kinderdagverblijf met 4 leefgroepen.

 

Opdrachtgever:

AG Vespa

Bruto oppervlakte:

5.321 m2

Bouwkost:

8.107.237 euro (excl. erelonen, btw)

Projectleiding:

Fille Hanjoul

Aannemer: Brebuild NV