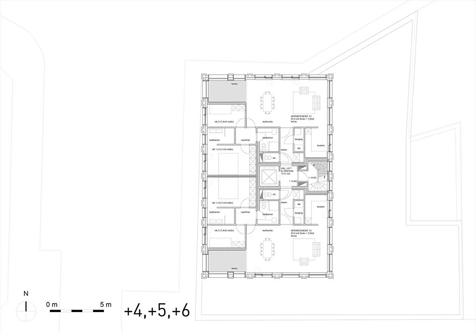
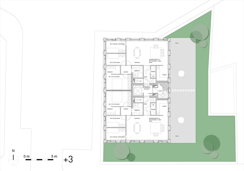
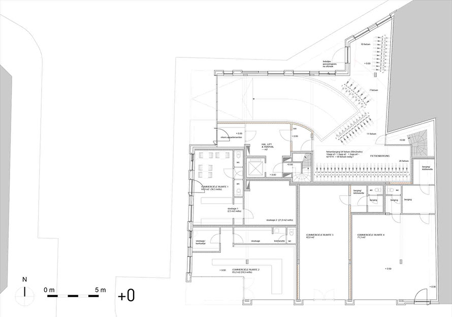
RESIDENTIE JULES
Locatie: Wilrijk
Bouwjaar: Voorzien 2018
Programma:
Nieuwbouw van 18 appartementen, 4 commerciƫle ruimtes & ondergrondse parkeergarage.
Opdrachtgever:
M20J bvba
Bruto oppervlakte:
3.489 m2
Bouwkost:
Nog niet bepaald
Projectleiding:
Ief De Schepper
Aannemer:
Nog niet bepaald
 
     
        
        
        
        
        
        
        
        
        
        
        
        
        
        
         
         
         
         
         
         
         
         
         
         
         
         
         
         
     
        
        
        
        
        
        
        
        
        
        
        
        
        
        
         
         
         
         
         
         
         
         
         
         
         
         
        